toyota 4runner fuse diagram

'89-'95 Toyota 4Runner Fuse Box Diagram. 16 Pictures about '89-'95 Toyota 4Runner Fuse Box Diagram : Toyota 4Runner (2002-2009) Fuse Box Diagrams - YouTube, Toyota 4Runner Fuse Box Diagram – MotoGuruMag and also Toyota 4Runner (2002-2009) Fuse Box Diagrams - YouTube.

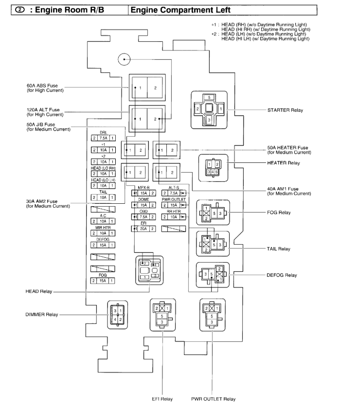
'89-'95 Toyota 4Runner Fuse Box Diagram

'89-'95 Toyota 4Runner Fuse Box Diagram knigaproavto.ru

4runner fusibles

Fuse Box Diagrams?: The Windows And Horn Do Not Work. Tried To

Fuse Box Diagrams?: the Windows and Horn Do Not Work. Tried to www.2carpros.com

fuse 2carpros

Toyota 4Runner (from 2013) - Fuse Box Diagram - Auto Genius

Toyota 4Runner (from 2013) - fuse box diagram - Auto Genius www.autogenius.info

fuse highlander fusibles fuses

Fuse Box Diagram Toyota 4Runner (N280; 2010-2017)

Fuse Box Diagram Toyota 4Runner (N280; 2010-2017) fuse-box.info

n280 fusibili fuses schemi

04 4runner Fuse Box - Wiring Diagram Schemas

04 4runner Fuse Box - Wiring Diagram Schemas sightronscopes.blogspot.com

4runner oem

Toyota 4Runner Fuse Box Location And Diagram Pictures, Electrical Panel

Toyota 4Runner Fuse Box Location and Diagram Pictures, Electrical Panel www.chadspictures.com

4runner toyota fuse box diagram location guide headlight battery engine change replacement install bulb 2003 panel fuses v6 replace chadspictures

Wiring Diagram PDF: 2002 Toyota 4runner Fuse Box Diagram

Wiring Diagram PDF: 2002 Toyota 4runner Fuse Box Diagram wiring-pdf.blogspot.com

yaris 4runner

2003 Toyota Tundra Fuse Box Diagram

2003 Toyota Tundra Fuse Box Diagram animaux-poissons.blogspot.com

tundra

2004 Toyota 4runner Fuse Box Diagram

2004 Toyota 4runner fuse box diagram automotorpad.com

toyota 2004 4runner fuse diagram box wiring source

2017 Toyota Highlander Fuse Box Diagram - Free Wiring Diagram

2017 Toyota Highlander Fuse Box Diagram - Free Wiring Diagram jalishamav.blogspot.com

highlander toyota fuse box diagram fuses wiring replacement diagrams

Toyota 4Runner Fuse Box Diagram – MotoGuruMag

Toyota 4Runner Fuse Box Diagram – MotoGuruMag motogurumag.com

4runner motogurumag prius switch

93 Toyota 4Runner Wiring Diagram | Fuse Box And Wiring Diagram

93 Toyota 4Runner Wiring Diagram | Fuse Box And Wiring Diagram stickerdeals.net

wiring toyota diagram 4runner diagrams pickup repair autozone 1996 1993 guides cruiser 1989 land guide engine truck pick electrical ups

Toyota 4 Runner Ac Relay Location

Toyota 4 Runner Ac Relay Location toyota4runnerjapan.blogspot.com

fuse relay hilux imageservice t4rs mr2

Toyota 4Runner (2010 – 2012) – Fuse Box Diagram - CARKNOWLEDGE

Toyota 4Runner (2010 – 2012) – fuse box diagram - CARKNOWLEDGE www.carknowledge.info

4runner wiring motor fusibles fifth carknowledge ampere fusible

2017 Toyota 4runner Interior Fuse Box Diagram | Awesome Home

2017 Toyota 4runner Interior Fuse Box Diagram | Awesome Home awesomehome.co

toyota

Toyota 4Runner (2002-2009) Fuse Box Diagrams - YouTube

Toyota 4Runner (2002-2009) Fuse Box Diagrams - YouTube www.youtube.com

4runner

Fuse relay hilux imageservice t4rs mr2. Fuse box diagrams?: the windows and horn do not work. tried to. 4runner motogurumag prius switch